Baakenhafen

Achtgeschossiges Wohngebäude in Hamburg-HafenCity

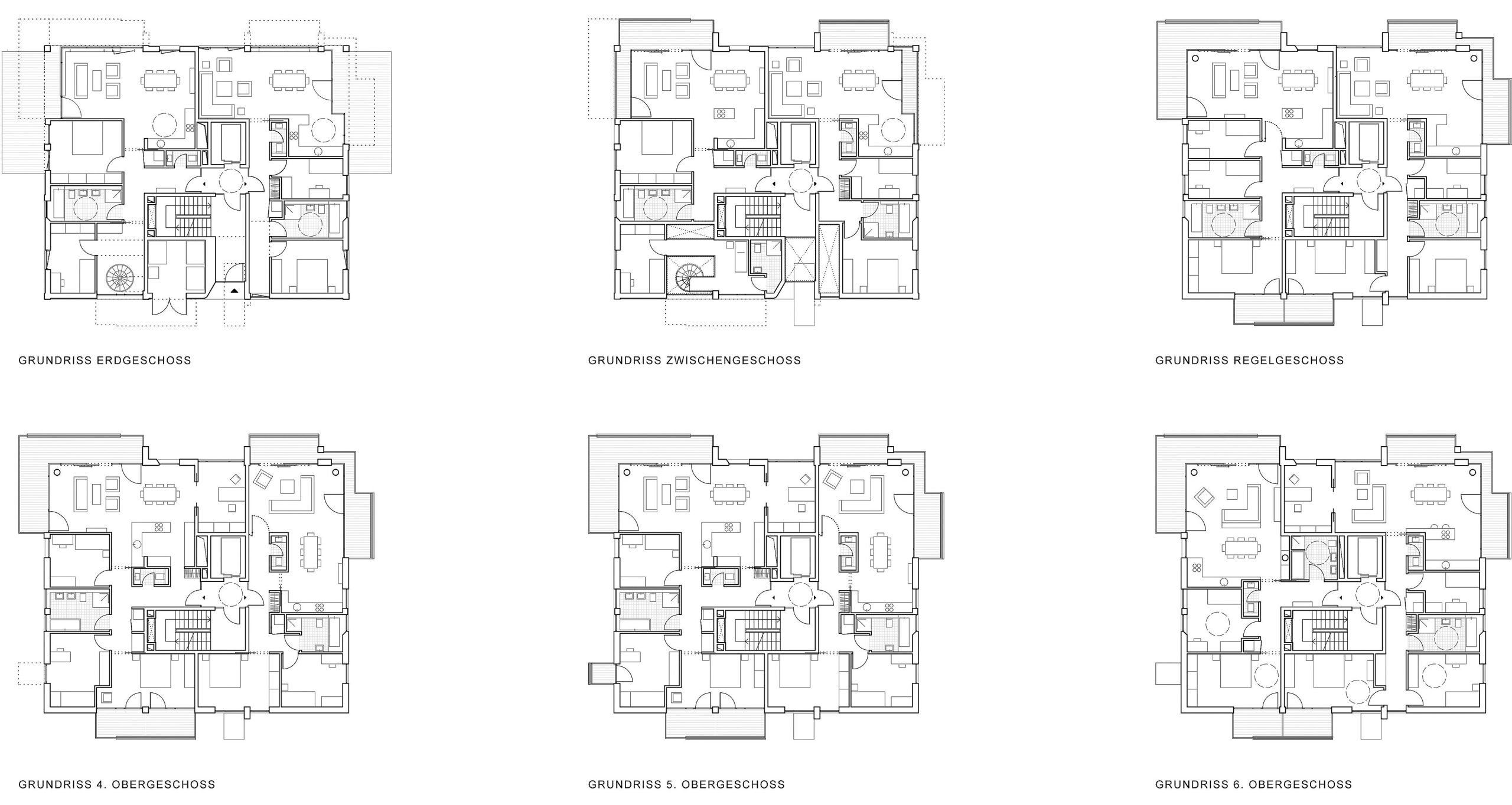
NEUBAU WOHNGEBÄUDE BAAKENHAFEN IN HAMBURG-HAFENCITY

Achtgeschossiger Neubau inkl. Staffel-, Kellergeschoss und Tiefgarage mit 16 Wohneinheiten.

Wettbewerb – 3. Preis
Jahr: 2020

BAUHERR

Belle Harbour
Fischers Allee 51
22763 Hamburg

Auslober:
Drost Consult
Kajen 10
20459 Hamburg

BAUWERKSDATEN

Bruttogrundfläche:

2.177 m²

Bruttorauminhalt:

8.818 m³

Nutzfläche:

1.621 m²

Leistungen KMT

Objektplanung Gebäude und
Raumbildende Ausbauten:


LPH 1-3

Objektplanung Freianlagen:

LPH 1-3

Animationen

KMT