
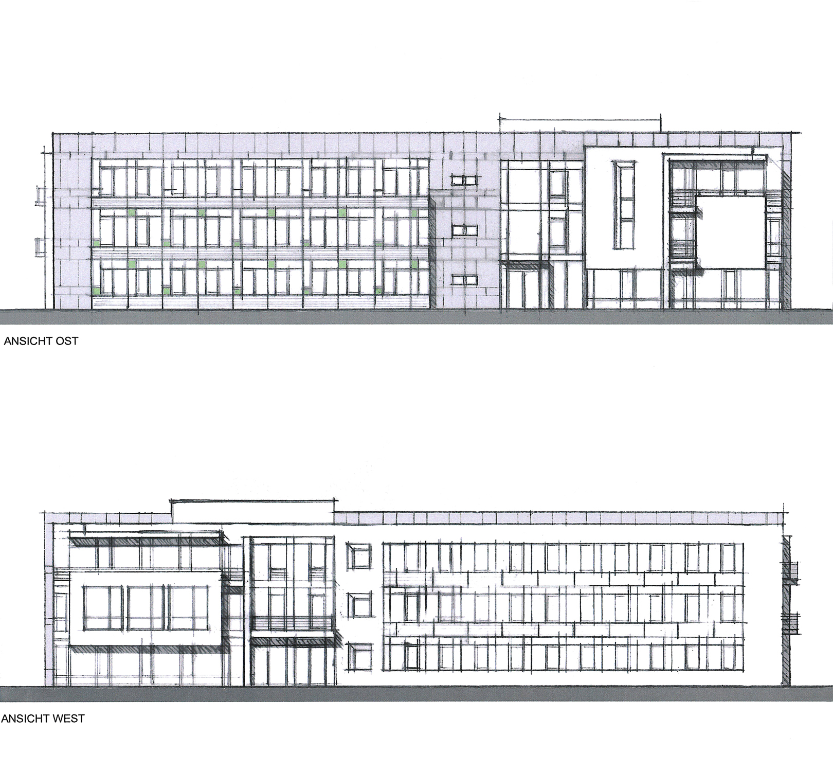
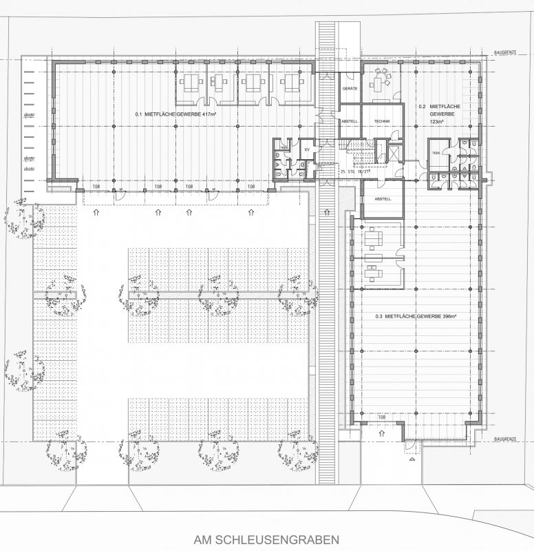
NEUBAU BIC – BUSINESS INNOVATION CENTER, AM SCHLEUSENGRABEN IN HAMBURG-BERGEDORF
Dreigeschossiger Neubau mit Ausstellungs-, Forschungs-, Labor- und Büroflächen am Ufer des Schleusengrabens in Hamburg-Bergedorf.
Jahr: 2013
BAUHERR
BHG – BIC
c/o Von Hacht & Partner
Curslacker Neuer Deich 66
21029 Hamburg
BAUWERKSDATEN
Bruttogrundfläche:
3.520 m²
Bruttorauminhalt:
14.140 m³
Nutzfläche:
2.900 m²
Leistungen KMT
Objektplanung Gebäude und
Raumbildende Ausbauten:
LPH 1-2
Objektplanung Freianlagen:
LPH 1-2
Fotos | Visualisierung
KMT








