
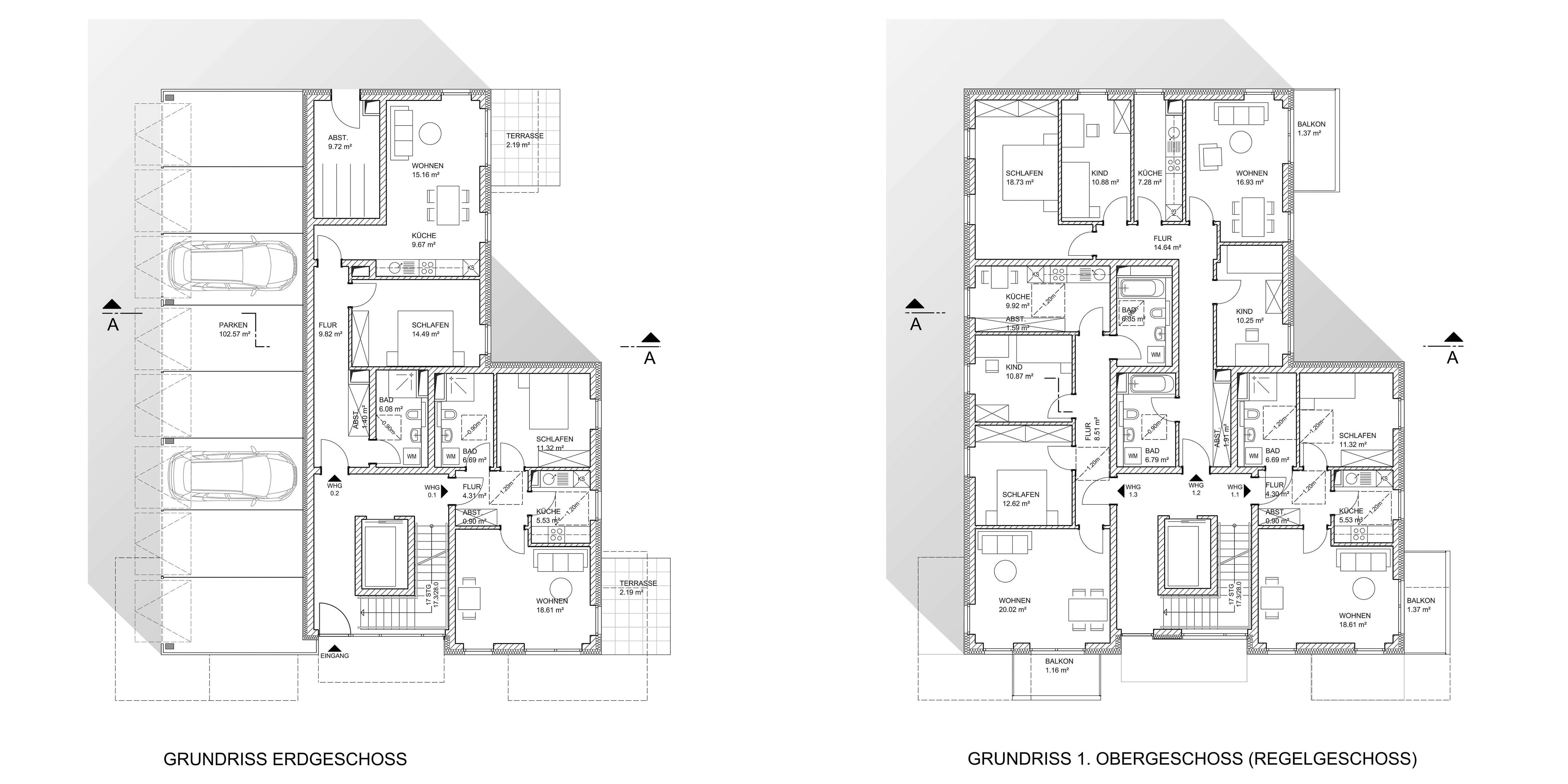
NEUBAU VON DREI WOHNGEBÄUDEN, HEIDSCHNUCKENRING IN HAMBURG-NEUGRABEN- FISCHBEK
Viergeschossige Neubauten inkl. Keller- und Staffelgeschoss mit insgesamt 40 Wohneinheiten sowie integrierten Stellplatzanlagen im Erdgeschoss.
Jahr: 2018
BAUHERR
HIG Hamburger Immobilienentwicklungsgesellschaft mbH
Poppenhusenstraße 2
22305 Hamburg
BAUWERKSDATEN
Bruttogrundfläche:
2.025 m²
Bruttorauminhalt:
6.027 m²
Nutzfläche:
1.418 m²
Leistungen KMT
Objektplanung Gebäude und
Raumbildende Ausbauten:
LPH 1-3
Objektplanung Freianlagen:
LPH 1-3
Fotos | Animation
KMT






