
NEUBAU HAUPTGEBÄUDE
HHLA-CTA, CONTAINERTERMINAL
IN HAMBURG-ALTENWERDER
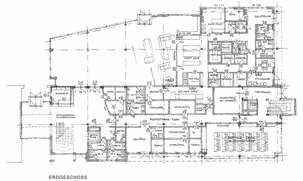
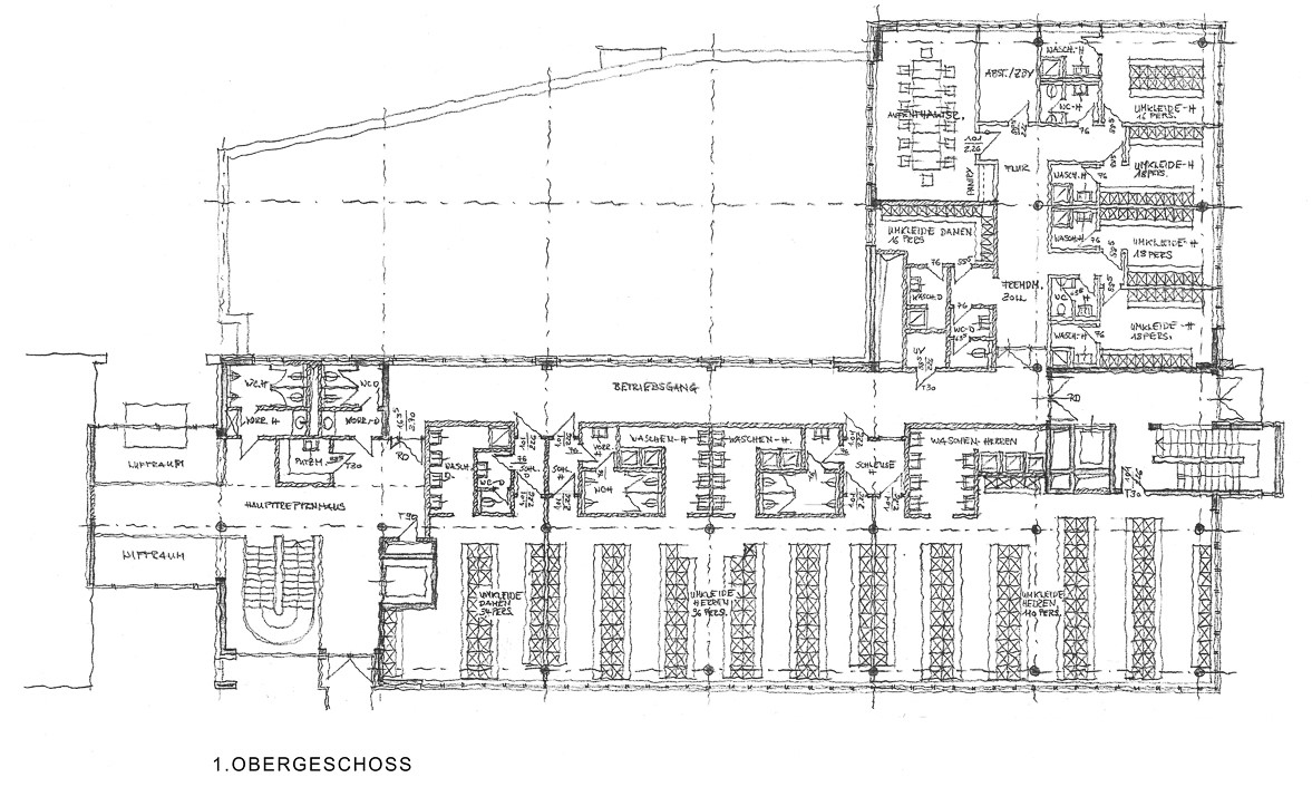
Neubau eines fünfgeschossigen Hauptgebäudes für den Containerterminal Altenwerder mit Büros, Sozialräumen, Schaltwarten zur Bedienung der Containerbrücken und Kantine.
Jahr: 1999 – 2001
BAUHERR
Hamburger Hafen- und Lagerhaus AG
Bei St. Annen 1
20457 Hamburg
BAUWERKSDATEN
Bruttogrundfläche:
5.122 m²
Bruttorauminhalt:
17.311 m³
Nutzfläche:
4.216 m²
Leistungen KMT
Objektplanung Gebäude
LPH 1-6
Fotos
KMT








