
NEUBAU LEBENSMITTELPRODUKTIONSBETRIEB ZUM DORFKRUG / SYLTER SALATFRISCHE IN NEU WULMSTROF
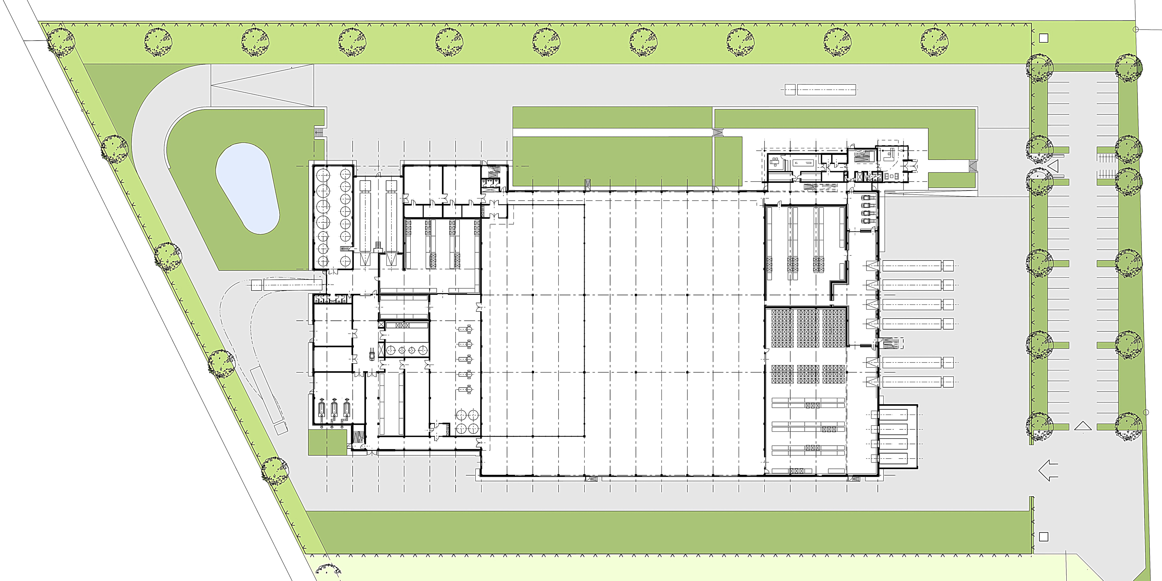
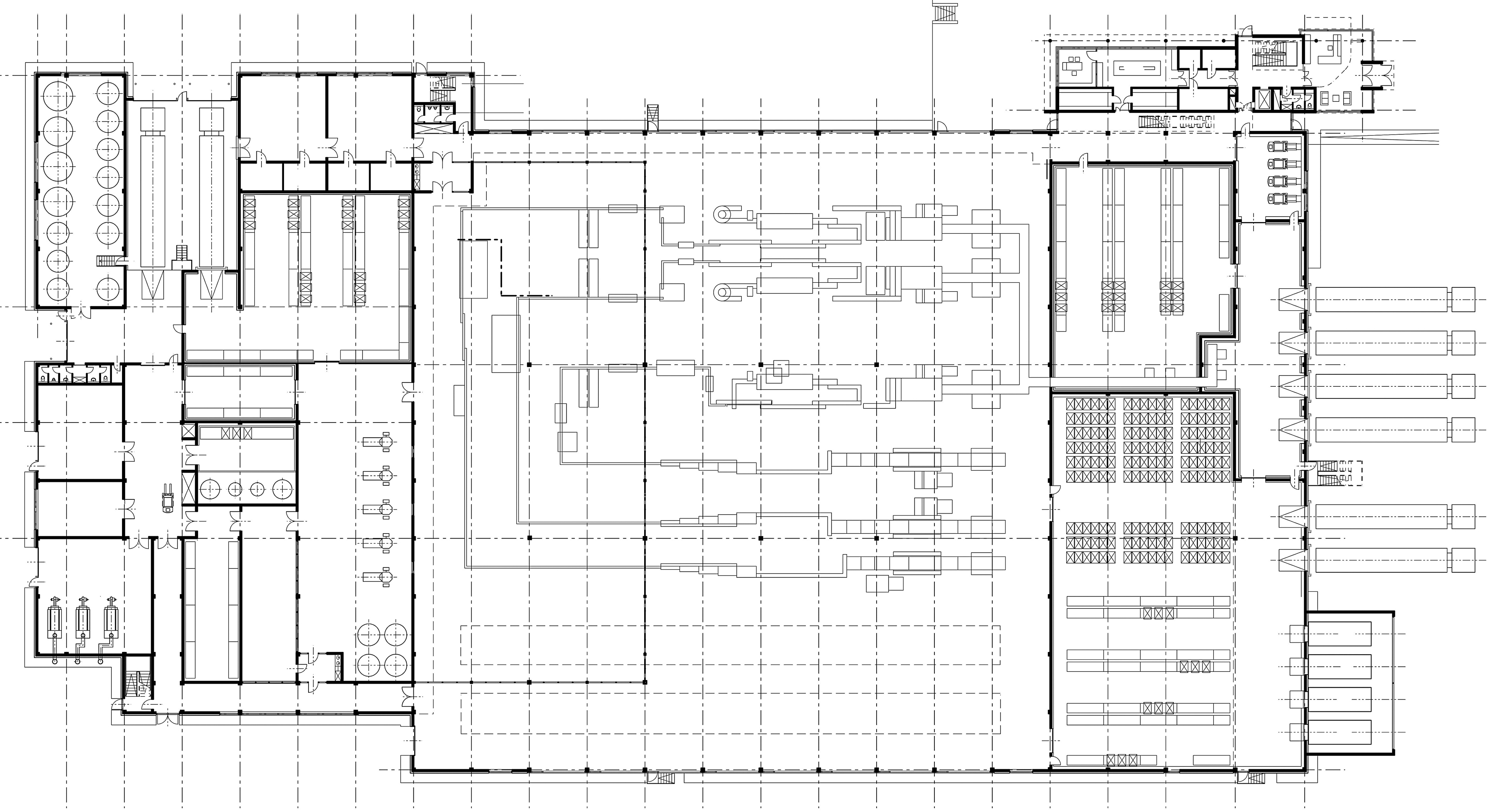
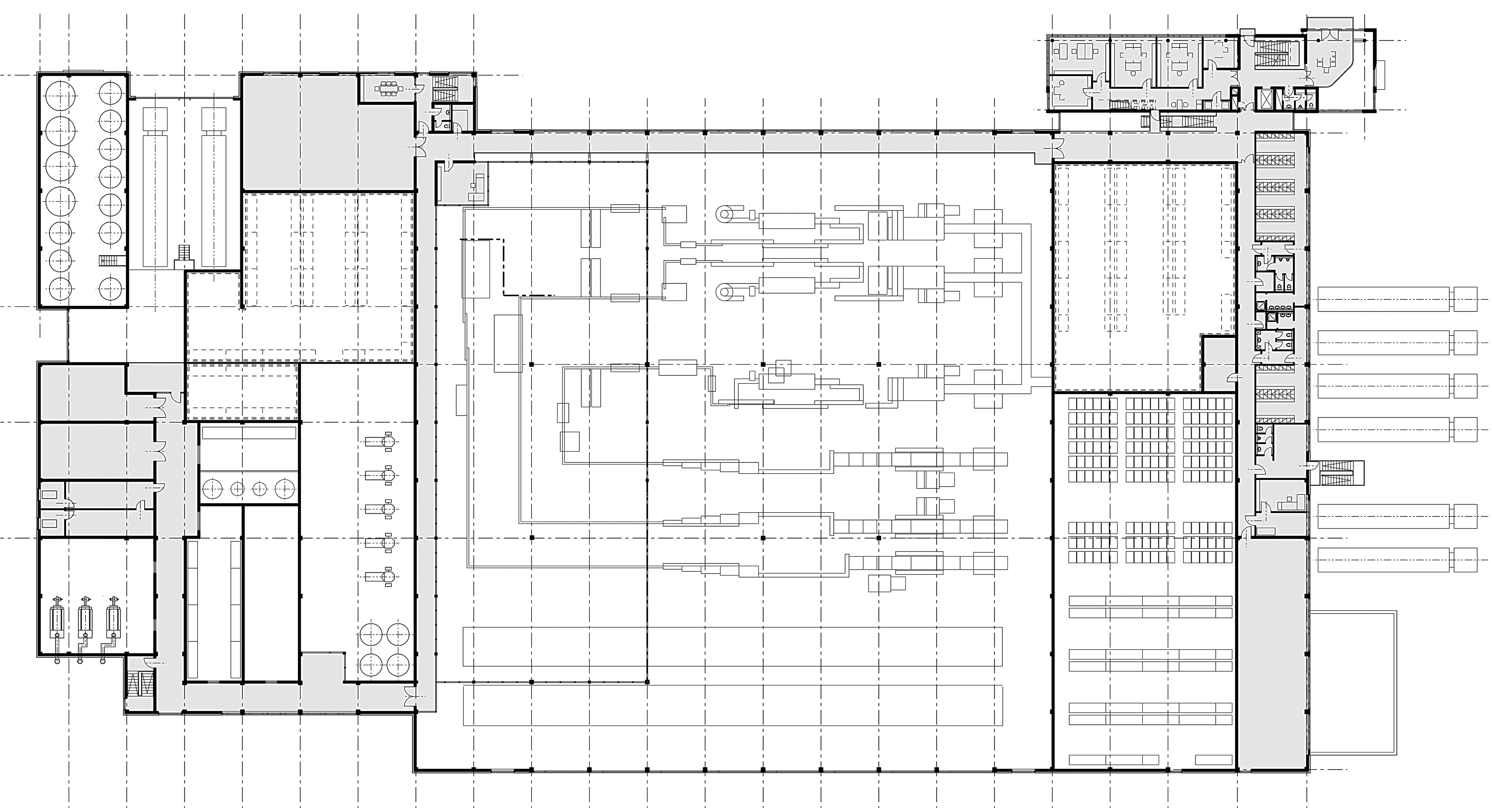
Neubau Produktionsgebäude mit Lagerhallen, Kühl-, Technik-, Labor- und Sozialräumen, Werkstätten sowie Neubau eines fünfgeschossigen Büro-, Kantinen- und Verkaufsgebäudes.
Jahr: 2010
BAUHERR
Thomas Hauschild
Grenzweg 1A
21629 Neu Wulmstorf
www.zum-dorfkrug.de
BAUWERKSDATEN
Bruttogrundfläche:
11.617 m²
Bruttorauminhalt:
108.252 m³
Nutzfläche:
10.613 m²
Leistungen KMT
Objektplanung Gebäude und
Raumbildende Ausbauten:
LPH 1-2
Objektplanung Freianlagen:
LPH 1-2
Tragwerksplanung:
LPH 1-2
Technische Ausrüstung:
LPH 1-2
Fotos | Visualisierung
KMT









