
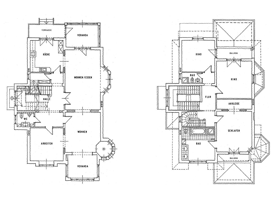
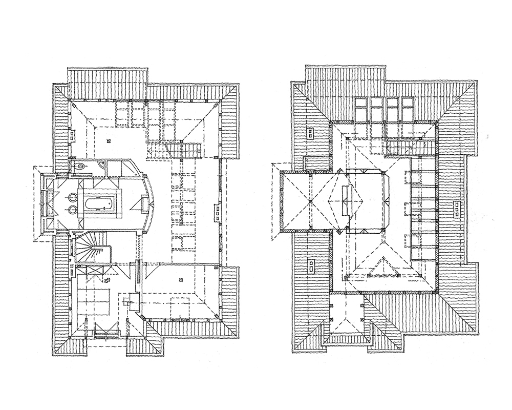
UMBAU UND SANIERUNG VILLA RIMEK, WENTORFER STRASSE
IN HAMBURG-BERGEDORF
Umbau / Rückbau von drei Wohneinheiten zu einer Wohneinheit mit Gästebereichen sowie Sanierung der denkmalgeschützten zweigeschossigen Villa (Baujahr 1899) mit Keller / Hanggeschoss.
Jahr: 1996 – 1999
BAUHERR
Privat
BAUWERKSDATEN
Bruttogrundfläche:
723 m²
Bruttorauminhalt:
2.664 m³
Nutzfläche:
531 m²
Leistungen KMT
Objektplanung Gebäude und
Raumbildende Ausbauten:
LPH 1-8
Fotos | Zeichnungen
KMT













